THE POINTER – BIRD OBSERVATORY
AL WATHBA WETLAND RESERVE


Propuesta resultado del concurso Abu Dhabi Flamingo Competition realizado por Bee Breeders, en colaboración con el arquitecto Alejandro Ortega Díaz. Consistía en la elaboración de un proyecto conjunto de un hito y una recorrido para el observatorio de aves del parque natural de Al Wathba, cuyo principal atractivo turístico son los flamencos. El objetivo era conseguir una intervención mínima en el terreno, a la par que se generase un elemento de gran presencia que integrase en sus materiales el entorno.
Proposed result of the Abu Dhabi Flamingo Competition held by Bee Breeders, in collaboration with the architect Alejandro Ortega Díaz. It consisted in the elaboration of a joint project of a landmark and a tour for the bird observatory of the Al Wathba natural park, whose main tourist attraction is the flamingos. The objective was to achieve minimal intervention in the field, while generating an element of great presence that integrated the environment into its materials.

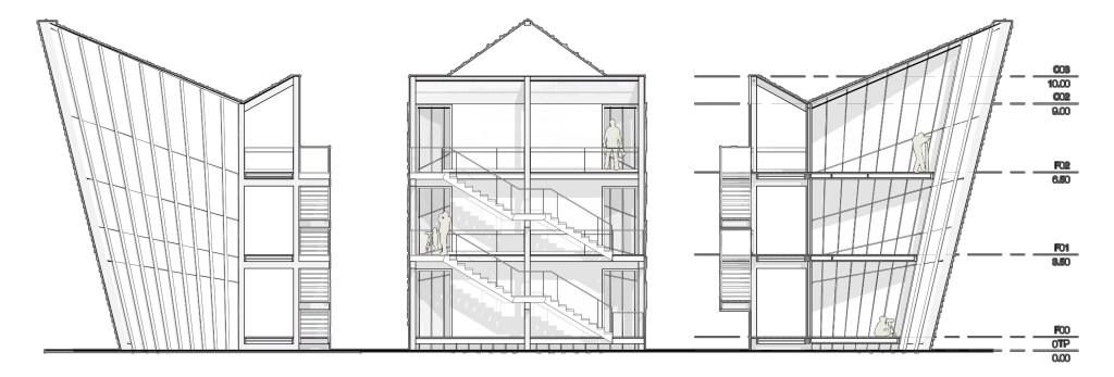
La hito de la propuesta residía en el mirador: una construcción de 3 plantas con una estructura de 3 pórticos de hormigón prefabricados (1A) desde donde se descolgaba un pilar (2A) que terminaba conformando la volumetría total. Sobre ésta estructura se montaban forjados de madera laminada (B), una piel exterior consistente en una estructura de montantes de madera (1C) y paneles de cañizo, y una cubierta de lona para terminar (2C).
The leitmotiv of the project was the viewpoint: a construction of 3 floors with a structure of 3 prefabricated concrete forums (1A) from where a pillar (2A) was lifted until it ended up forming the total volumetry. On this structure they are mounted for laminated wood papers (B), an outer skin consisting of a structure of wooden studs (1C) and hurdle panels, and a finished canvas cover (2C).


La planta triangular de la cota 0 posee una área inferior a la planta superior, generando una piel paramétrica que no interrumpe la discontinuidad de sus montantes de madera. El interior se compone de paneles de vidrio con acabado de espejo exterior y cuadros constituidos de cañizo.
The triangular plan of level 0 has a lower area than the upper floor, generating a parametric skin that does not interrupt the discontinuity of its wooden uprights. The interior consists of glass panels with exterior mirror finish and frames made of hurdle.

El concurso se realizó enteramente en Autodesk Revit® renderizando los modelados con la herramienta Lumion® antes de ser incorporados a un foto-montaje con Adobe Photoshop®. La documentación previa se estudió antes del modelado a través de herramientas CAD y el montaje final se realizó en Adobe InDesign®
The contest was held entirely in Autodesk Revit® rendering the modeling with the Lumion® tool before being incorporated into a photo montage with Adobe Photoshop®. The previous documentation was studied before modeling through CAD tools and the final assembly was done in Adobe InDesign®

